- Woonoppervlakte
- Circa 206 m²
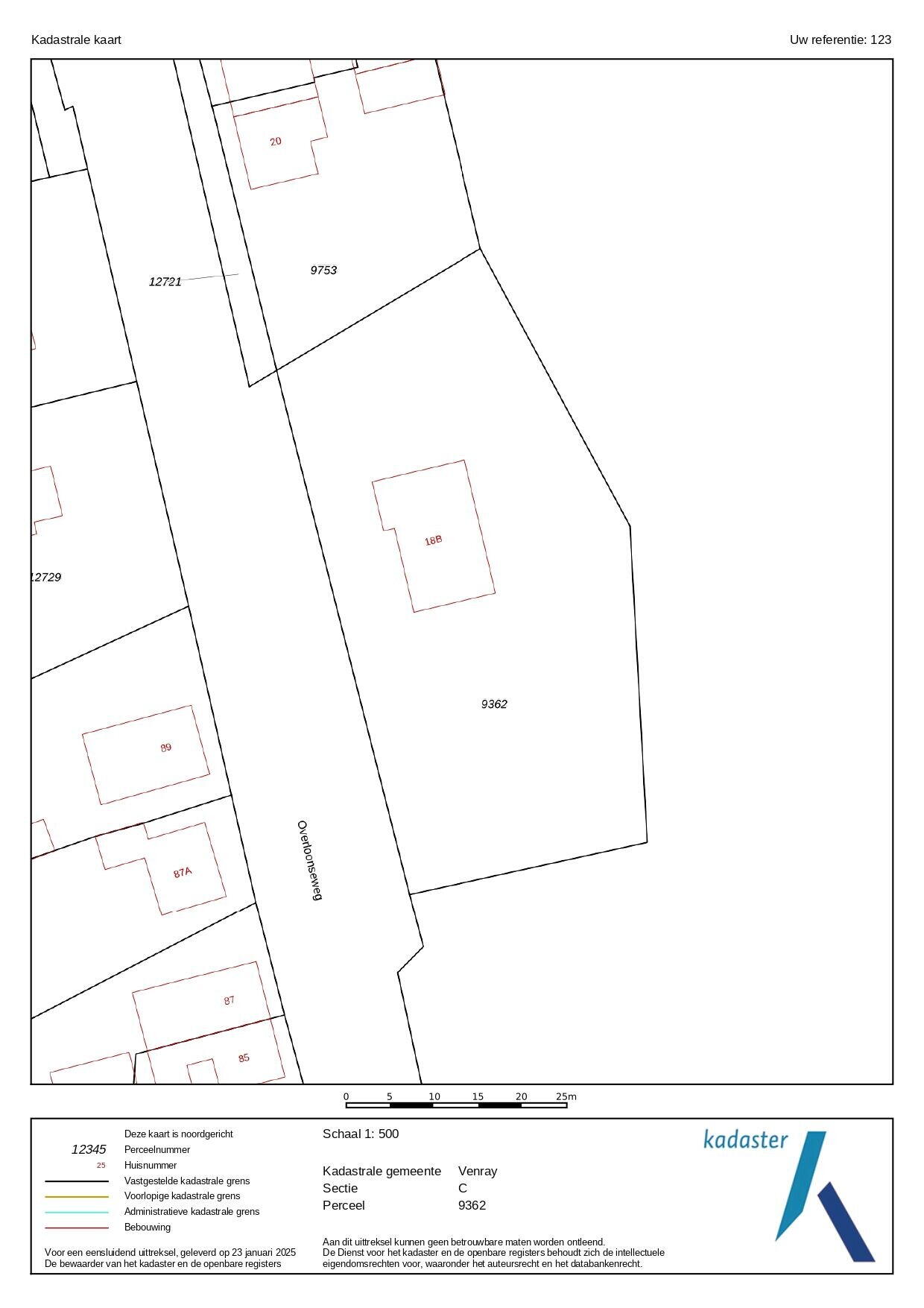
- Perceeloppervlakte
- Circa 2.075 m²
- Bouwjaar
- Gebouwd in 1973
- Aantal kamers
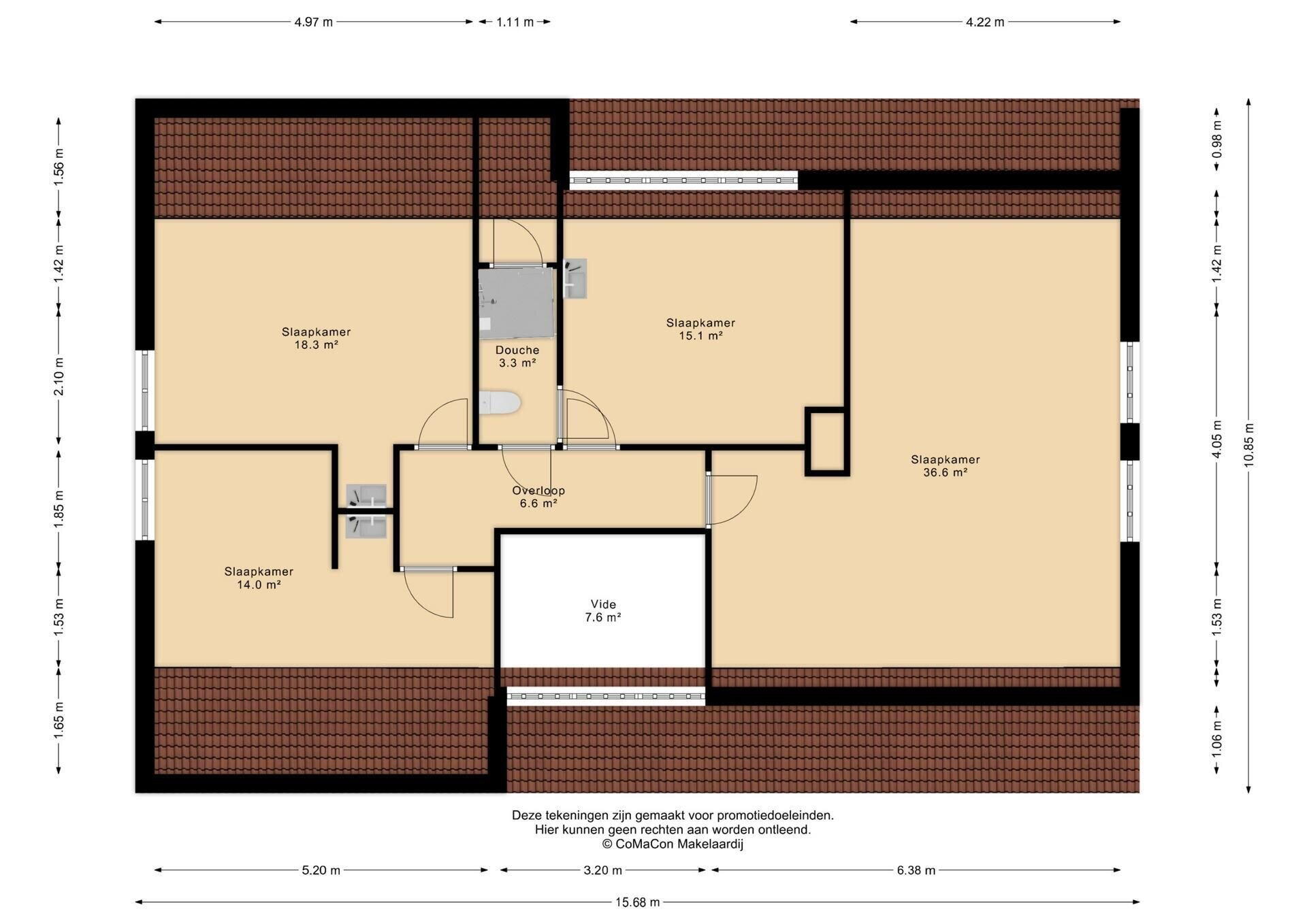
- 6 kamers (5 slaapkamers)
IN VERBAND MET DE GROTE BELANGSTELLING VOOR DEZE WONING IS HET NIET MEER MOGELIJK EEN BEZICHTIGINGSAANVRAAG OF INFORMATIEVERZOEK IN TE DIENEN.
Kluswoning met grote tuin in de buurt Brabander/Smakterheide, Venray
Welkom op de Overloonseweg 18-B, 5804 AV Venray – een unieke kans voor de enthousiaste klusser! Deze karakteristieke vrijstaande woning, gebouwd in 1973, biedt een schat aan mogelijkheden en is een prima investering voor wie droomt van een eigen, gepersonaliseerd thuis.
Deze kluswoning, met een vraagprijs van € 637.000, biedt niet alleen een solide investering, maar ook een unieke kans om uw droomhuis te creëren. Met een royale woonoppervlakte van 206 m2, verdeeld over twee verdiepingen, is er voldoende ruimte voor het verwezenlijken van uw ideeën.
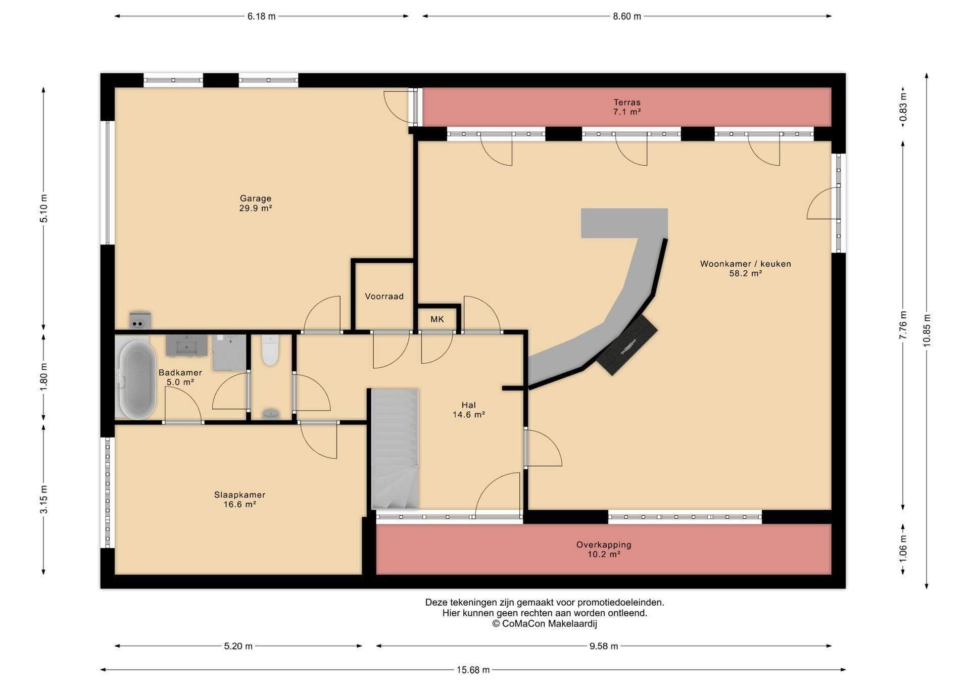
De benedenverdieping is levensloopbestendig ingericht met slaapkamer en badkamer. Op de eerste verdieping bevinden zich 1 badkamer en 4 slaapkamers met de mogelijkheid om nog 1 extra slaapkamer te realiseren. De grote tuin, ideaal voor de enthousiaste tuinier, biedt veel mogelijkheden en privacy. Deze grenst aan de achterzijde aan het Annapark. De mogelijkheid om een deel van de tuin af te splitsen voor het realiseren van een of meerdere nieuwbouwwoningen is wellicht ook mogelijk. Dit is nog niet onderzocht.
De ligging in de gewilde buurt Brabander/Smakterheide, nabij het bruisende centrum van Venray, voegt extra waarde toe aan deze woning. De woning is bouwkundig in prima staat maar behoeft wel enige renovatie en biedt daarmee de mogelijkheid voor het realiseren van uw eigen ideeën.
VENRAY
De woning ligt op 5 minuten fietsen (15 minuten lopen) van het centrum van Venray en 14 minuten fietsen van het treinstation Venray-Oostrum. De A73 is binnen 5 minuten te bereiken. Basisonderwijs, speciaal onderwijs, voortgezet onderwijs, sport, cultuur, winkels en horeca zijn in Venray goed vertegenwoordigd en maken het wonen op deze plek aantrekkelijk voor jong en oud.
KENMERKEN en BIJZONDERHEDEN:
- Vraagprijs: € 637.000
- Bouwjaar: 1973
- Perceel 2075 m2
- Oppervlakte wonen 206 m2
- Overig inpandige ruimte 44 m2
- Gebouwgebonden buitenruimte 18 m2
- Woningtype: vrijstaand
- Energielabel: F
- Raamkozijnen: Hout, voorzien van enkel glas met (deels) voorzetraam
- Achtertuin ligging: Oost
- Slaapkamers: 1 op begane grond, 4 op 1e verdieping met mogelijkheid voor nog 1 extra
- Badkamer: Begane grond en 1e verdieping
De informatie in deze publicatie is met de nodige zorgvuldigheid samengesteld.
Wij aanvaarden geen aansprakelijkheid voor eventuele onvolledigheid, onjuistheid of anderszins en de daaraan gelieerde gevolgen.
De tekeningen met vermelde afmetingen zijn gemaakt voor promotiedoeleinden.
Hier kunnen geen rechten aan ontleend worden.
Overdracht
- Vraagprijs
- € 637.000 k.k.
- Status
- Verkocht
Bouw
- Object type
- Eengezinswoning, vrijstaande woning
- Soort bouw
- Bestaande bouw
- Bouwjaar
- 1973
Oppervlakte en inhoud
- Woonoppervlakte
- 206 m²
- Perceeloppervlakte
- 2.075 m²
- Inhoud
- 1.098 m³
- Gebouwgeb. buitenruimte
- 18 m²
Indeling
- Aantal kamers
- 6 kamers (5 slaapkamers)
- Aantal badkamers
- 2 badkamers en 1 apart toilet
- Badkamervoorzieningen
- 2 douches, toilet, ligbad, en wastafelmeubel
- Aantal woonlagen
- 2 woonlagen en een zolder
- Voorzieningen
- Alarminstallatie, frans balkon, glasvezelkabel, natuurlijke ventilatie, en TV kabel
Energie
- Energielabel
- F
- Energielabel registratie
- 19-02-2025
- Isolatie
- Muurisolatie en voorzetramen
- Verwarming
- Heteluchtverwarming
- Warm water
- Geiser
Buitenruimte
- Ligging
- Aan rustige weg, in bosrijke omgeving en in woonwijk
- Balkon / dakterras
- Frans balkon aanwezig
- Tuin
- Achtertuin
- Afmetingen achtertuin
- 900 m² (60,00 meter diep en 15,00 meter breed)
- ligging tuin
- Gelegen op het oosten en bereikbaar via achterom
Bergruimte
- Schuur / berging
- Vrijstaande houten berging
- Voorzieningen
- Elektra
Garage
- Soort garage
- Inpandig
- Capaciteit
- 1 auto
- Voorzieningen
- Elektrische deur, elektra, verwarming en stromend stromend water
- Isolatie
- Geen isolatie
Parkeergelegenheid
- Soort parkeergelegenheid
- Op eigen terrein en openbaar parkeren
Energieverbruik in Venray
Energielabel deze woning
Energielabel F
Publicatie energielabel: 19-02-2025
Stroomverbruik per jaar
(Gemiddelde vrijstaande woning in Venray)
Gasverbruik per jaar
(Gemiddelde vrijstaande woning in Venray)
* Cijfers zijn afkomstig van het CBS en bedoeld als indicatie en kunnen verschillen voor deze woning
Indicatie hypotheeklasten
Eigen inleg:
Spaargeld / overwaarde
Rente:
Laagste 10-jaars rente
Laagste 10-jaars rente
2,76% - Centraal Beheer Groen... - NHG
2,98% - Centraal Beheer Groen... - 80%
Laagste 20-jaars rente
3,19% - Centraal Beheer Groen... - NHG
3,31% - Centraal Beheer Groen... - 80%
Laagste 30-jaars rente
3,34% - Centraal Beheer Groen... - NHG
3,47% - Centraal Beheer Groen... - 80%
Hypotheek:
Bruto maandlasten: € 0 p/m
Netto maandlasten: € 0 p/m
Hoe berekenen we dit?
Het rentepercentage is gebaseerd op de laagste 10-jaars vaste rente voor één hypotheekdeel. De vermelde rente (2.98% zonder NHG) is gecontroleerd op 28-08-2025. Deze berekening is gebaseerd op een annuïteitenhypotheek die volledig wordt afgelost, waarbij de maandlasten gedurende de gehele looptijd gelijk blijven. De werkelijke rente en netto maandlasten kunnen variëren, afhankelijk van uw persoonlijke situatie en de hypotheekverstrekker. Raadpleeg een financieel adviseur voor een nauwkeurige berekening en advies. Aan deze berekening kunnen geen rechten worden ontleend; het dient enkel als indicatie.
Documentatie
Kadastrale kaart
Leefomgeving
Brochure
Plattegronden PDF
WOZ waarderapport
BAG uittreksel
Waardebepaling
Zoekopdracht
Alles downloaden
Zonnegrenzen bekijken
Op de kaart
Inwoners in Venray
Cijfers voor postcodegebied 5804
- Totaal aantal inwoners
- 3040 inwoners
- Mannen
- 50%
- Vrouwen
- 50%
Inwoners in Venray
Cijfers voor postcodegebied 5804
- tot 15 jaar
- 21%
- 15 tot 25 jaar
- 11%
- 25 tot 35 jaar
- 27%
- 45 tot 65 jaar
- 28%
- 65 en ouder
- 13%
Huishoudens in Venray
Cijfers voor postcodegebied 5804
- Eenpersoons zonder kinderen
- 23%
- Meerpersoons zonder kinderen
- 31%
- Huishoudens zonder kinderen
- 54%
Huishoudens in Venray
Cijfers voor postcodegebied 5804
- Huishoudens met één kind
- 7%
- Huishoudens met meerdere kinderen
- 39%
- Huishoudens met kinderen
- 46%
Woningen in Venray
Cijfers voor postcodegebied 5804
- Woningen voor 1945
- 8%
- Woningen tussen 1945 en 1965
- 8%
- Woningen tussen 1965 en 1975
- 5%
- Woningen tussen 1975 en 1985
- 5%
- Woningen tussen 1985 en 1995
- 9%
Woningen in Venray
Cijfers voor postcodegebied 5804
- Woningen tussen 1995 en 2005
- 10%
- Woningen tussen 2005 en 2015
- 35%
- Woningen na 2015
- 20%
- Huurwoningen
- 20%
- Koopwoningen
- 80%
Overige in Venray
Cijfers voor postcodegebied 5804
- Gemiddelde WOZ waarde
- € 304.000,-
- Personen onder de 65 met uitkering
- 7%
Overige in Venray
Cijfers voor postcodegebied 5804
- Adressen per km²
- 872
- Stedelijkheid (schaal 1 op 5)
- 40%
CoMaCon Makelaardij
Indien u vragen heeft of u wilt een bezichtiging inplannen, dan kunt u gebruik maken van het formulier hiernaast. Er zal daarna op korte termijn contact met u worden opgenomen.
Contact opnemen
Comacon Makelaardij
Bij Comacon Makelaardij krijgt u meer dan alleen een makelaar. Dankzij onze unieke combinatie van vastgoedervaring en bouwkundige achtergrond, bieden wij een totaalpakket dat verder gaat dan de standaard dienstverlening.
Wat ons onderscheidt:
Waardebepaling zonder kosten
We starten met een gratis inschatting van de waarde van uw woning – zonder verplichtingen.
Persoonlijke benadering en rust in het proces
Uw wensen staan centraal. We nemen uitgebreid de tijd om uw situatie te begrijpen en begeleiden u op een ontspannen manier.
Strategisch aan- en verkoopplan
Geen standaard aanpak, maar een zorgvuldig op maat gemaakte strategie om het maximale uit uw transactie te halen.
Eerlijkheid als kernwaarde
Wij werken transparant en hechten sterk aan betrouwbaarheid en ethisch handelen.
Kennis van zaken
U kunt rekenen op professionele begeleiding van een ervaren expert die met u meedenkt.
Gedetailleerde werkwijze
Onze processen zijn verfijnd tot in de kleinste details, zodat u profiteert van een gestroomlijnde afhandeling.
Zorg voor de koper
Wij vinden het belangrijk dat ook de koper goed wordt begeleid, zodat de gehele transactie soepel en verantwoord verloopt.
Grondige bezichtigingen
Onze rondleidingen zijn helder, informatief en afgestemd op de behoeften van potentiële kopers.
Passende courtage
Onze tarieven worden afgestemd op het object, zodat u een eerlijke prijs betaalt voor onze dienstverlening.
Opstartkosten
Naast de courtage rekenen wij opstartkosten voor de voorbereidingen en presentatie van uw woning.
Aankoopbegeleiding cadeau bij verkoopopdracht
Geeft u ons het vertrouwen voor de verkoop? Dan helpen wij u kosteloos bij het kopen van een nieuwe woning.
Ontdek het verschil van Comacon Makelaardij
Wij zetten ons volledig in voor het beste resultaat bij uw aan- of verkoop. Neem vrijblijvend contact met ons op en ervaar zelf onze betrokken en professionele aanpak.
Uw succes is ons uitgangspunt.
Nieuwste reviews
-
Beurskensweide 12
Het contact met Comacon,Ging soepel, verliep goed tussen mij en makelaar.Zelf is alles goed verlopen tot in de koop zetten en tot het einde...
-
Bonenkampstraat 12
We zijn naar tevredenheid geholpen door Theo Cox van Comacon Makelaardij bij de verkoop van onze woning. Theo was altijd goed bereikbaar en...
-
Henny Verhaagh
Fijne samenwerking!